Wohnfläche
120 m²
Zimmer
3
Etage
3
Fertigstellung
N/A

Objektbeschreibung

Die großzügige Wohnung befindet sich in der 2. Etage eines Wohn- und Geschäftshauses in zentraler Lage in Heiligenhaus. Einkaufsmöglichkeiten, Ärzte, Schulen und Restaurants befinden sich in unmittelbarer Nähe und sind leicht fußläufig zu erreichen.

Ausstattung

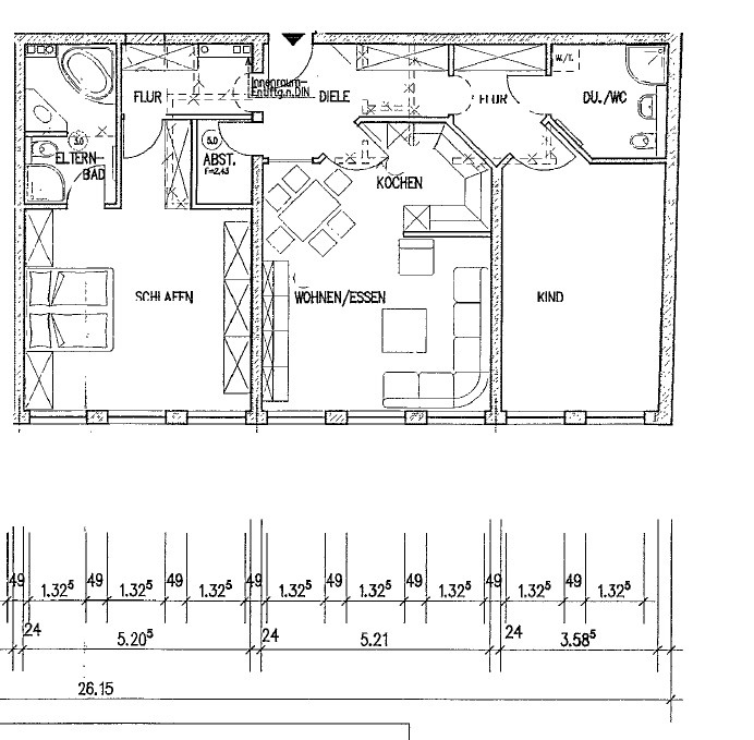
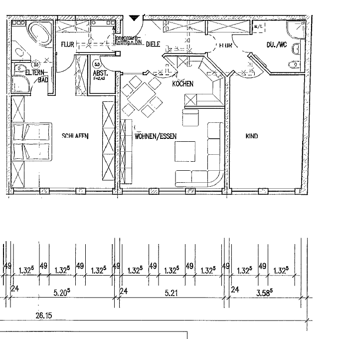
Die schöne 3-Zimmer-Wohnung ist aufgeteilt in ein Wohnzimmer mit angrenzender Küche und zwei Schlafzimmern. Zu jedem Schlafzimmer gehört ein Badezimmer. Ein Bad ist ausgestattet mit einer Eckbadewanne und Dusche; das zweite Bad hat eine ebenerdige Dusche. Die Wohnung ist ideal für eine kleine Familie oder auch als WG geeignet. In der kompletten Wohnung wurden Fliesen verlegt; ein Schlafzimmer ist mit Laminat ausgestattet. Geräumige Flure bieten viel Platz für Möbel mit Stauraum.

Lage

Heiligenhaus ist eine mittlere Stadt im Norden des Kreises Mettmann. Sie liegt im Städtdreieck Düsseldorf-Essen-Wuppertal. Heiligenhaus verfügt über 15 Kindergärten, sechs Grundschulen, eine Realschule, eine Gesamtschule und ein Gymnasium. Durch das Stadtgebiet verläuft ein Teilstück der Bundesautobahn 44 sowie auch die Bundesstraße 227. Sie schließt im Westen an die A3, A52 (Essen–Düsseldorf), A524 im Autobahnkreuz Breitscheid an.

Umgebungskarte ansehen

Sonstige Angaben

Haben wir Ihr Interesse geweckt? Dann vereinbaren Sie noch heute einen Besichtigungstermin mit uns. Bei Fragen stehen wir Ihnen gerne zur Verfügung.

Raumangebot

Raum Fläche
Fläche 120.00 m²
Gesamtfläche 120 m²

Ausstattung

Heizung

  • Zentralheizung

Zustand

  • Zustand: Gepflegt

Ausstattung

  • Ausstattungsqualität: Normal

Grundriss 1

Grundriss

Bildergalerie

Heiligenhaus // Gemütliche helle 3-ZKB-Wohnung (203) zu vermieten
Heiligenhaus // Gemütliche helle 3-ZKB-Wohnung (203) zu vermieten
Heiligenhaus // Gemütliche helle 3-ZKB-Wohnung (203) zu vermieten
Heiligenhaus // Gemütliche helle 3-ZKB-Wohnung (203) zu vermieten
Heiligenhaus // Gemütliche helle 3-ZKB-Wohnung (203) zu vermieten
Heiligenhaus // Gemütliche helle 3-ZKB-Wohnung (203) zu vermieten
Heiligenhaus // Gemütliche helle 3-ZKB-Wohnung (203) zu vermieten
Heiligenhaus // Gemütliche helle 3-ZKB-Wohnung (203) zu vermieten
Heiligenhaus // Gemütliche helle 3-ZKB-Wohnung (203) zu vermieten
Heiligenhaus // Gemütliche helle 3-ZKB-Wohnung (203) zu vermieten
Heiligenhaus // Gemütliche helle 3-ZKB-Wohnung (203) zu vermieten
Heiligenhaus // Gemütliche helle 3-ZKB-Wohnung (203) zu vermieten
Heiligenhaus // Gemütliche helle 3-ZKB-Wohnung (203) zu vermieten

Objektdaten

Objektart: apartment
Adresse: Hauptstraße 177
Ort: 42579 Heiligenhaus
Stockwerk: 3
Aufzug: Nein

Preise

Miete: 960,00 €
Betriebskosten: 200,00 €
Heizkostenpauschale: 220,00 €

Lage

Hauptstraße 177, 42579 Heiligenhaus